ANC 5A held its monthly public meeting on April 22, 2020. Commissioners present: Frank Wilds (5A01), Emily Singer Lucio (5A03), Ronnie Edwards (5A05), Claudia Barragan (5A06), Sandi Washington (5A07), Gordon Fletcher (5A08)
The ANC held a virtual meeting for the first time. Given the circumstances, it went fairly well. Some of the presentations ran a little long so the meeting ended after 9:00 pm. No MPD officer was present to give a report.
ANC Business
The second quarter financial report was approved with an ending balance of $26,880.63.
On March 25, 2020, Commissioner Barragan (5A06) submitted a request for reimbursement for direct mail communication to constituents in her single member district (SMD). Expenses included $226.14 for postage and $150 to print postcards. Commissioner Barragan wanted to do direct mail becase she said her SMD does not have an email list and there was no communication to constituents by the previous commissioner. Commissioner Barragan also posted flyers throughout the SMD with her contact information and information about the ANC in English and Spanish.
Commissioner Sandi Washington (5A07), treasurer of the ANC, expressed concern about setting a precedent of paying for direct mail, noting that commissioners typically use grassroots efforts to reach out to constituents and that there will be an election for new ANCs this November. Given the pandemic and social distancing requirements though, door knocking is not realistic at this time. The commission unanimously approved reimbursement for the direct mail expenses.
Commissioner Fletcher Public Safety Task Force Resolution
Commissioner Gordon Fletcher (5A08) held a winter single member district (SMD) meeting to discuss increasing crime in the SMD, particularly around Capital Area Food Bank between 6th Street NE & Emerson Park. Residents at the meeting unanimously voted to establish a public safety task force and developed several recommendations. Commissioner Fletcher sought a resolution of support from the ANC for those recommendations. The ANC voted to approve the resolution with a modification to explore expanding the operation of the task force to all of ANC 5A. View the draft letter here.
Mayor’s Office Report (Ward 5 MOCR Malik Miller)
- DC’s Department of Health is coordinating several public COVID-19 testing sites by appointment only. There is a hotline for homebound individuals to get delivery of essential items such as groceries – (888) 349-8323 or visit coronavirus.dc.gov/gethelp.
- DC’s Department of Aging & Community Living is distributing meals for seniors. Call (202) 724-5626. Many grocery stores have dedicated seniors-only shopping hours. See https://coronavirus.dc.gov/food for more information.
- DCPS schools will close May 29; public charter schools will close around same time.
- To apply for unemployment benefits, visit DCnetworks.org or call (202) 724-7000.
- Customers are advised to wear face masks to grocery stores and encouraged to use online and curbside shopping.
- DC has passed legislation to temporarily halt evictions and freeze rent increases. In addition, mortgage lenders must create a 90-day residential/commercial mortgage relief program for those who request it.
- SNAP benefit holders do not need to take action to receive April/May benefits; those benefits will be automatically extended.
- The convention center will be converted into a 500-bed alternate care facility, if necessary.
Ward 5 Councilmember Report (Silas Grant, Senior Advisor)
Ward 5 Councilmember Kenyan McDuffie’s office noted disparity in deaths related to COVID-19 among African-Americans. His office is exploring creation of mask making operation in the ward. They need general counsel approval before partnering with an organization that is actively fundraising, so they may not be able to be directly involved in the process but do want to make the community aware of the options that exist. They are looking at a model such as Route 1 Mask Match in Maryland.
His office also noted the many mutual aid groups that have been established since the public health emergency was announced. His office would like to work with ANCs to make sure these groups are providing adequate coverage throughout the ward in areas where they are needed most. Many groups are looking for storage places in the ward for donated resources and to serve as distribution locations, so his office will be contacting ANCs for help with that as well.
Commissioner Barragan suggested that his office encourage the mutual aid groups to work with ServeDC to address liability and protection issues given that many of these groups are not registered nonprofit organizations with insurance or a charity license and therefore there is no government oversight of these groups that are working with vulnerable individuals at high risk of exposure. She noted that mutual aid groups in Wards 7 and 8 are working with nonprofit organizations such as Martha’s Table and Capital Area Food Bank, so she suggested that maybe the Ward 5 groups could work with Food & Friends.
Mr. Grant noted that the councilmember’s office just wants the commissioners to be aware that the mutual aid groups exist and that there are opportunities for volunteerism. His office had been working with Martha’s Table to distribute meals to seniors and hope to restart that distribution soon.
Providence Health System (Nicole Commodore, Director of Community Impact and Advocacy; Senai Medhani, Physician Enterprise)
Providence presented on what it is doing to assist during the COVID-19 public health emergency and to provide an update on its urgent care center. View the presentation here.
Chick-fil-A (Zachary Williams, Venable)
Zachary Williams briefly presented briefly on Chick-fil-A’s plan to build a new restaurant at 220 Riggs Road NE where the KFC/Taco Bell and former Dakota Liquors is located. We covered this topic many times on the blog. The restaurant will be roughly 4,000 square feet with 42 interior seats and a drive-thru. The restaurant is seeking a public space permit from DDOT in order to close two curb cuts on 3rd Street, one being the curb cut that is very close to the intersection at 3rd Street and Riggs Road NE. The application is on the agenda for DDOT’s June 2020 public space committee meeting.
The restaurant is in Ward 4. ANC 4B is planning to support the public space permit application. (See Chick-fil-A’s presentation to ANC 4B in February 2020 here). The presentation before ANC 5A was for their awareness. Commissioner Fletcher, whose SMD sits across the street from the proposed location, stated he would let ANC 4B and the Lamond-Riggs Citizens Association (LRCA) handle things. However, there will likely be issues on which he will need to work with the ANC 4B commissioners.
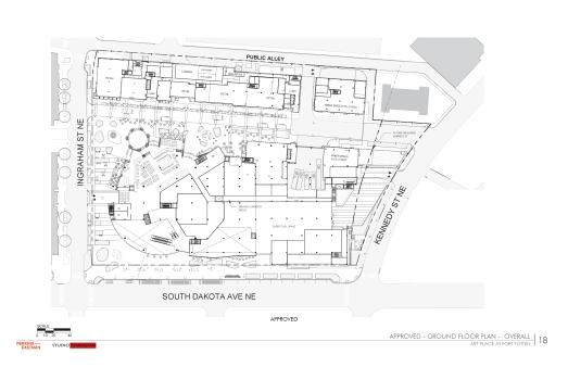
Art Place at Fort Totten Block B Modification of Consequence (Paul Tummonds, Sean Cahill)
The developer of Art Place at Fort Totten has filed a Modification of Consequences with the Zoning Commission for Block B to get approval for a few architectural changes. (We covered that in this post).
The first biweekly construction notice to the community has been distributed. Currently, drill rigs are testing soil borings throughout the site. They are proceeding with getting permits for excavation and disconnecting utilities to 7 of the 8 vacant Riggs Plaza apartment buildings. They hope to be under full construction on Block B by July 6, 2020. Construction questions may be sent to hello@fezartplace.com.
DC Bilingual Public Charter School
DC Bilingual is planning to construct a 27,000 square foot extension along Rock Creek Church Road NE to add extra classroom, playground, & outdoor space. The playground and outdoor space will be open to the community outside of school hours and when not in use by the school. The school has discussed renting 30 spaces from the church across the street to provide parking that will be lost during construction.
View the presentation here.
DC Census
Commissioners Fletcher and Lucio encouraged residents to respond to the 2020 Census. The Ward 5 response rate is only 45%, while the DC response rate is 48% & countrywide repsonse rate is 49%.



























